Trilocale in vendita

Grugliasco, Via Gerolamo Olevano
€ 290.000
3 locali 3 locali
78 Mq 78 Mq
2 bagni 2 bagni

Trilocale in vendita

Grugliasco, Via Gerolamo Olevano

Descrizione annuncio

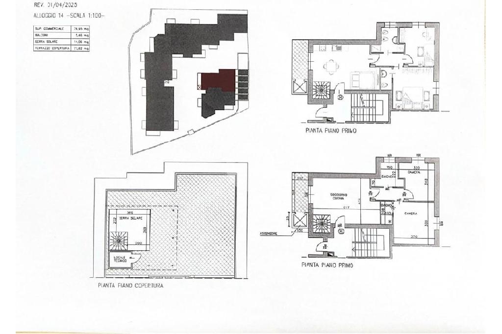
Nel cuore di Grugliasco proponiamo un trilocale all'ultimo piano, di nuova costruzione, con doppi servizi e lastrico solare pronto per essere personalizzato tramite l'ampia gamma di capitolato offerta dall'impresa.

L'immobile si estende su due livelli offrendo spazi ben distribuiti e moderni, con collegamento interno e diretto tramite la scala che sfocia al terrazzo, arricchito da una moderna serra solare ideale per tutte le stagioni grazie alle sue dimensioni e vetrate che rendono l'ambiente funzionale. Verrà data inoltre la possibilità di rinforzare una parte del solaio del terrazzo al fine di poter installare una vasca idroimassaggio o piscina.

La soluzione gode di spazi per diverse esigenze con ampie finestre e balconi che rendono gli ambienti luminosi, i materiali innovativi utilizzati e le rifiniture di alto pregio permettono alla costruzione di ottenere un impatto ambientale esiguo con certificazione energetica di alta classe (A3 e A4).

Uno dei punti forti della soluzione è la completa autonomia. Ogni unità abitativa ha il riscaldamento a pavimento con pompa di calore alimentata da pannelli fotovoltaici esclusivi dell'alloggio e predisposizione per gli split negli ambienti principali, inclusa la serra solare.

I serramenti sono in PVC da 82, triplo vetro con anta a ribalta per garantire la massima sicurezza e isolamento termico. Le tapparelle sono motorizzate con la possibilità di comando domotico. Nell'alloggio sarà installata una VMC con sistema Wirless flat.

Competano la soluzione, al piano seminterrato, l'ampia cantina e l'autorimessa, disponibile in diverse metrature, al prezzo a partire da euro 20.000 .

L'attico offre una vista panoramica grazie alla sua posizione privilegiata, soluzione abitativa ideale per chi cerca modernità e comfort in una delle zone più ricercate di Grugliasco.

Mostra tutto

Nelle vicinanze

Trasporto pubblico Trasporto pubblico
Fermi
Fermi
2,3 Km
Paradiso
Paradiso
2,7 Km
stazione di Grugliasco
stazione di Grugliasco
2,2 Km
stazione di Collegno
stazione di Collegno
2,2 Km
Cervi
Cervi
190 m
Ricariche auto elettriche Ricariche auto elettriche
Tris Car Di Mina Giuseppe | EnelX
1,3 Km
Collegno Corso Francia | EnelX
1,9 Km
RIVOLI Via Pavia | ENELX FAST
2,1 Km
Collegno Pastrengo | ENELX
2,1 Km
COLLEGNO PASTRENGO 34/b | ENELX
2,6 Km
Scuole Scuole
66 Martiri
390 m
Dante Di Nanni
1,0 Km
Istituto Tecnico Industriale Statale Ettore Majorana
1,3 Km
Scuola Elementare Giuseppe Ungaretti
1,4 Km
Facoltà di Agraria e Veterinaria
1,6 Km
Farmacia Farmacia
Farmacia
440 m
Vecco
650 m
Farmacia Peirano
1,4 Km
Parafarmacia Conad
2,5 Km
Farmacia Comunale 9
2,5 Km
Supermercati Supermercati
Penny Market
430 m
GS
530 m
Basko
570 m
Compro Qui
580 m
Mercatò
710 m
Negozi Negozi
Panetteria
570 m
latteria - milk and food
840 m
Alimentari
920 m
Carrefour Express
1,2 Km
Negozi
1,7 Km
Bar Bar
Bar
580 m
Gelateria
1,1 Km
Pausa Café
1,1 Km
Bar - tabacchi
1,2 Km
Bar Pa.Fi.
1,5 Km
Ristoranti Ristoranti
Nord Ovest
500 m
rosticceria
670 m
Ristoranti
680 m
Pizzeria degli Angeli
810 m
Pizza Pazza
970 m
Mostra tutto

Caratteristiche

Rif.:
61130122
Piano:
1 di 1 (Piano attico)
Box:
1
Balconi:
2
Terrazzi:
1
Camere da letto:
2
Mostra tutto
Prezzo Prezzo
€ 290.000
Prezzo box Prezzo box
€ 20.000
Rata mutuo Rata mutuo
€ 1.351 / mese
Spese annue Spese annue
€ 0
Proponi il tuo prezzoProponi il tuo prezzo

Classe Energetica

A4
A4
A4
A4
A4
A4
A4
A4
A4
EP globale non rinnovabile:
20.64 kW h/m² anno
EP globale rinnovabile:
20.64 kW h/m² anno
EP invernale del fabbricato:
EP estiva del fabbricato:
Anno di costruzione:
2025
Riscaldamento:
Autonomo
Tipo impianto:
A pavimento
Tipo alimentazione:
Altro

Ti interessa visionare l'immobile?

Fissa un appuntamento  Fissa un appuntamento

Richiedi informazioni

Clicca su Leggi per aprire l'informativa
* Questi campi sono obbligatori

Calcola il tuo mutuo

Semplice e senza impegno
Anticipo

( % )
Mutuo

( % )

pochi semplici passi

inserisci i tuoi dati
Questionario completato
Grazie per aver richiesto un appuntamento senza impegno con un nostro Consulente del Credito e Assicurativo.

Hai inserito correttamente tutti i dati necessari e a breve riceverai una e-mail con un link da convalidare per inviare i tuoi dati.
Affiliato
Case A Collegno Srl
Via Don Caustico, 62 10095 Grugliasco (TO)

Il nostro staff


  • Stefano Carra
    Collaboratore

  • Adriano Genghi
    Collaboratore

  • Giovanni Lapiccirella
    Affiliato

  • Luca Naselli
    Responsabile

  • Giada Tabacchin
    Coordinatrice
Via Don Caustico, 62 10095 Grugliasco (TO)
Zona: Grugliasco-Via Battisti-San Giacomo-Borgo Verde-Zona Fabbrichetta
Mostra su mappa
Orari: lunedì-venerdì 9:00-12:30/15:00-20:00 sabato 09:00-12:30/15:00-18:00
Affiliato
Case A Collegno Srl
Via Don Caustico, 62 10095 Grugliasco (TO)

2025 Tecnocasa Franchising S.p.A. - P. IVA 08365160152 - Via Monte Bianco 60/A 20089 Rozzano (MI). Ogni agenzia ha un proprio titolare ed è autonoma. Privacy policy | Policy utilizzo | Cookie policy